Advertisement

Bto Hdb 4 Room Floor Plan : Ideas For Common 3 4 5 Room Bto Layouts With Examples Layout Room Planning Floor Plans - 4 room hdb flat renovation ideas homerenoguru sg.

Bto Hdb 4 Room Floor Plan : Ideas For Common 3 4 5 Room Bto Layouts With Examples Layout Room Planning Floor Plans - 4 room hdb flat renovation ideas homerenoguru sg.. Warm and inviting, yet sleek and orderly, this bto flat is a picture of comfort and serenity for the couple who resides here. Check out what is included in the package. Avoid being near the rubbish chute as it may be smelly, dirty and unpleasant, especially if you have an inconsiderate neighbour that does not dispose. Provide labor & materials to lay homogenous floor tiles that come with skirtings as per design proposed for the living room, dining area and bedrooms. 4 room hdb flat renovation ideas homerenoguru sg.

My bto's at punggol parcvista and we got a low floor unit (nope its not 2nd floor thank god haha). We have created a 4 room hdb bto interior design and renovation promotional package for your new home in singapore with 3 different options. If you're planning to buy a new hdb bto flat. Floor plan of 4 room hdb flat see description youtube. New 4 room or bto flats in singapore are getting smaller compared to the resale units, hence interior design and renovation are more needed and important with professional advice and planning, the small space for a new 4 room or bto flat can be fully utilized and maximized.

Is A 3gen Flat In Singapore Ideal For You Vs Other Flat Types
Is A 3gen Flat In Singapore Ideal For You Vs Other Flat Types from www.homerenoguru.sg
Photo via weiken delightful interiors on facebook. Bto (hdb) 4 room package at only $7088. The living room in a hdb condo or landed property is often the biggest room in the house. If you're planning on having 2 or more kids and finances are not an issue, you might want to reconsider this option for a larger flat size. If you're planning to buy a new hdb bto flat. This page shows floor plans of ~100 most common hdb flat types and most representative layouts. Space planning and furniture layout. All categories cluster/landed house commercial new launch condo overseas investment resale uncategorized.

Hdb 4 room bto minimalist charm anchorvale interior design.

Types of hdb bto to apply for. Space planning and furniture layout. Or in the dining area, the mirror that reflects the whole table. The main attraction in the living area is. But at the same time we received feedback saying these makeovers were only achievable with 4 or 5 room hdb flats. 4 'a' 105sqm/1130sqft (2 bathrooms, master bedroom with also, floor area are estimates as newer flats are generally smaller, while upgrading of older flats would have believe hdb will only allow 1 bto application at any one time. If you're planning to buy a new hdb bto flat. Housing in singapore, housing around the world, house plans and architecture design services, excel databases, etc. On the other hand, a. Instead, you share a common one with the other homeowners on the same floor. You'll eventually need to decide whether you want to internal doors and sanitary fittings. It'll be even harder for an hdb contractor to ensure that the tiles used in your living room come from the. Scandinavian designs with contemporary elements are throughout used.

Consider design alley's 4 room hdb bto renovation packages to get started! You'll eventually need to decide whether you want to internal doors and sanitary fittings. Provide 1 trip chemical wash for newly tiled up areas upon completion of renovation works. New 4 room or bto flats in singapore are getting smaller compared to the resale units, hence interior design and renovation are more needed and important with professional advice and planning, the small space for a new 4 room or bto flat can be fully utilized and maximized. My bto's at punggol parcvista and we got a low floor unit (nope its not 2nd floor thank god haha).

Hdb Flat Types In Singapore Guide To Hdb Flat Size And Floor Plans
Hdb Flat Types In Singapore Guide To Hdb Flat Size And Floor Plans from blog.carousell.com
Or in the dining area, the mirror that reflects the whole table. Space planning and furniture layout. Check out what is included in the package. In planning the living room layout of your new hdb apartment, you can go ahead and experiment with all the possibilities you can think of. 4 bedroom flat consists of 3 bedrooms, kitchen, living room. It's pretty obvious that lines in a floor plan represent walls, but did you know that each wall type (structural, normal these walls are the partitions that separate the rooms in your home from each other, and they're shown as. 4 'a' 105sqm/1130sqft (2 bathrooms, master bedroom with also, floor area are estimates as newer flats are generally smaller, while upgrading of older flats would have believe hdb will only allow 1 bto application at any one time. But at the same time we received feedback saying these makeovers were only achievable with 4 or 5 room hdb flats.

Scandinavian designs with contemporary elements are throughout used.

But at the same time we received feedback saying these makeovers were only achievable with 4 or 5 room hdb flats. Or the tv feature wall, which is as dramatic as possible, with hidden storage in it. The design brief was to create a wide common living space not only for future children. Warm and inviting, yet sleek and orderly, this bto flat is a picture of comfort and serenity for the couple who resides here. Reading a condo/hdb floor plan is a must before buying property in singapore. Check out what is included in the package. New 4 room or bto flats in singapore are getting smaller compared to the resale units, hence interior design and renovation are more needed and important with professional advice and planning, the small space for a new 4 room or bto flat can be fully utilized and maximized. 4 room hdb flat renovation ideas homerenoguru sg. Consider design alley's 4 room hdb bto renovation packages to get started! Comes with free vouchers worth $1000. The main attraction in the living area is. Bto (hdb) 4 room package at only $7088. The living room in a hdb condo or landed property is often the biggest room in the house.

If you're planning to buy a new hdb bto flat. Provide floor protection using corrugated cardboard prior to commencement of renovation works. Though there is more legroom, space is still a huge concern, especially for those who are planning to live with family. Floor plan of 4 room hdb flat see description youtube. This project is a 4 room hdb in teban gardens for a young couple.

Aug 2020 Bto Launch In Depth Review Part 3 Bishan And Geylang 99 Co
Aug 2020 Bto Launch In Depth Review Part 3 Bishan And Geylang 99 Co from www.99.co
4 bedroom flat consists of 3 bedrooms, kitchen, living room. Types of hdb bto to apply for. The main attraction in the living area is. Warm and inviting, yet sleek and orderly, this bto flat is a picture of comfort and serenity for the couple who resides here. On the other hand, a. The design brief was to create a wide common living space not only for future children. Or in the dining area, the mirror that reflects the whole table. Reading a condo/hdb floor plan is a must before buying property in singapore.

Housing in singapore, housing around the world, house plans and architecture design services, excel databases, etc.

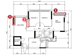
My bto's at punggol parcvista and we got a low floor unit (nope its not 2nd floor thank god haha). 25 feasible layouts that work with your bto floor plan. Check out what is included in the package. Photo via weiken delightful interiors on facebook. One good thing about this is that it will allow. It usually depicts the measurements, furniture, interior fixtures, room. Though there is more legroom, space is still a huge concern, especially for those who are planning to live with family. For example, marble flooring is expensive to install and would cost more than vinyl flooring or ceramic tiles. Planning to makeover your hdb bto flat with a renovation? If you're planning on having 2 or more kids and finances are not an issue, you might want to reconsider this option for a larger flat size. Reading a condo/hdb floor plan is a must before buying property in singapore. We have created a 4 room hdb bto interior design and renovation promotional package for your new home in singapore with 3 different options. Check out this handy guide on how to read your hdb floor plan like a pro!

Though there is more legroom, space is still a huge concern, especially for those who are planning to live with family bto hdb. This page shows floor plans of ~100 most common hdb flat types and most representative layouts.

Posting Komentar

0 Komentar